
Crédit Photo- Pinterest

Planche d'Ambiance - Concept décoratif




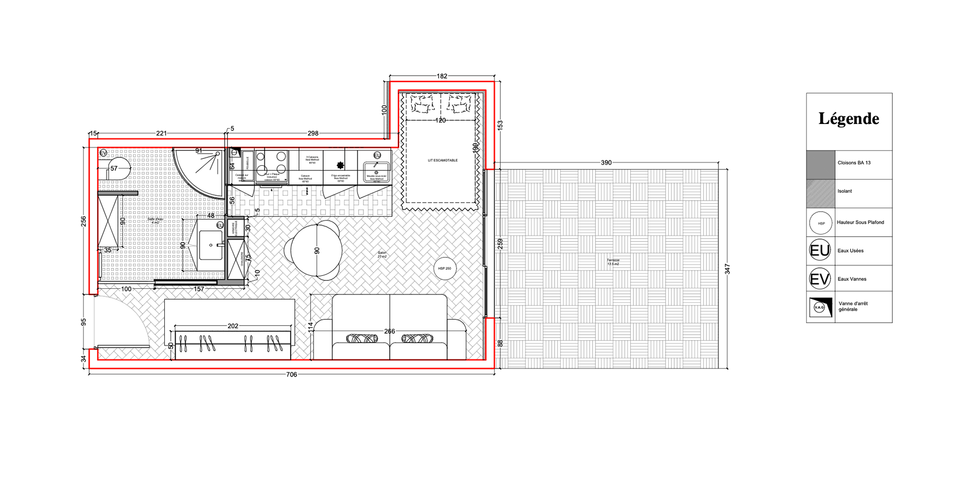
Logement de 26 m2 réalisé par le Groupe ICADE et REI. Exposé plein sud et traversant, la lumière s'est imposée comme fil conducteur. Cabana de Luz reprend l'univers poétique de Jean Cocteau. Le tout dans une ambiance naturelle où les matières proposent des jeux de lumières. L'aménagement du lieu a été pensé pour pouvoir circuler librement et prévoir du rangement. Au sein de ce petit studio, le cellier a été transformé en chambre avec un lit escamotable, permettant d'agrandir la pièce de vie donnant sur un jardin de 20 m2.
Crédit Photo- Pinterest
Planche d'Ambiance - Concept décoratif